Skip Navigation LinksHome > Sample Calculation > Horizontal Brace Connection
Skip Navigation Links.
Collapse HomeHome
Steel Connection Design Manual
Everything About Licensing
Buy a License / How to Login
Change Login Name and Password
Quick Start - New User
CivilBay Engineering Services
Collapse Connection LibraryConnection Library
Collapse Concrete Anchorage DesignConcrete Anchorage Design
Collapse Sample CalculationSample Calculation
Collapse Moment ConnectionMoment Connection
Collapse Moment Connection-SeismicMoment Connection-Seismic
Collapse Shear ConnectionShear Connection
Collapse Vertical Brace ConnectionVertical Brace Connection
Collapse Vertical Brace - SeismicVertical Brace - Seismic
Collapse Horizontal Brace ConnectionHorizontal Brace Connection
Collapse Chevron Brace ConnectionChevron Brace Connection
Collapse Knee Brace ConnectionKnee Brace Connection
Collapse Base Plate Ver Brace ConnectionBase Plate Ver Brace Connection
Collapse Splice ConnectionSplice Connection

Horizontal Brace Connection

In this section you will find the sample calculation reports of Horizontal Brace Connection generated by this program.


Horizontal Brace Connection - End Plate

Horizontal Brace Connection - End Plate

 

 

Go to this connection      Online Demo       Calc Report on Web Page         Calc Report on PDF      



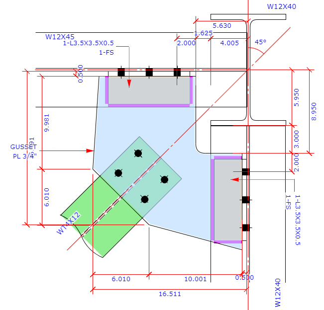
Horizontal Brace Connection - Wrap Around Gusset Plate - Clip Angle

Horizontal Brace Connection - Wrap Around Gusset Plate - Clip Angle

 

 

Go to this connection      Online Demo       Calc Report on Web Page         Calc Report on PDF      



Horizontal Brace Connection - Wrap Around Gusset Plate - Shear Tab

Horizontal Brace Connection - Wrap Around Gusset Plate - Shear Tab

 

 

Go to this connection      Online Demo       Calc Report on Web Page         Calc Report on PDF