Skip Navigation LinksHome > Connection Library > Shear Connection - Tutorial
Skip Navigation Links.
Collapse HomeHome
Steel Connection Design Manual
Everything About Licensing
Buy a License / How to Login
Change Login Name and Password
Quick Start - New User
CivilBay Engineering Services
Collapse Connection LibraryConnection Library
Collapse Concrete Anchorage DesignConcrete Anchorage Design
Collapse Sample CalculationSample Calculation
Collapse Moment ConnectionMoment Connection
Collapse Moment Connection-SeismicMoment Connection-Seismic
Collapse Shear ConnectionShear Connection
Collapse Vertical Brace ConnectionVertical Brace Connection
Collapse Vertical Brace - SeismicVertical Brace - Seismic
Collapse Horizontal Brace ConnectionHorizontal Brace Connection
Collapse Chevron Brace ConnectionChevron Brace Connection
Collapse Knee Brace ConnectionKnee Brace Connection
Collapse Base Plate Ver Brace ConnectionBase Plate Ver Brace Connection
Collapse Splice ConnectionSplice Connection

Shear Connection - Tutorials

 
In this page we present tutorial videos to demo how to design shear connections using CivilBay steel connection program.  

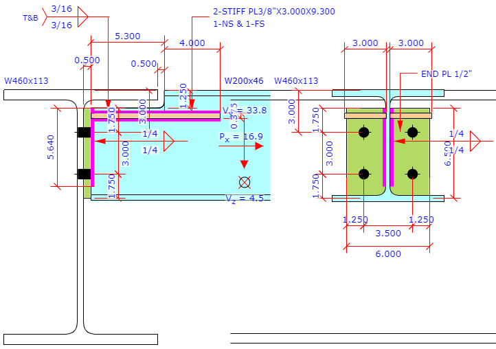
   Shear End Plate Connection - Beam to Column
 
Sketch - Detailing  

 
 
   Tutorial on Youtube           Working Sheet             Online Demo - Column Strong Axis            Online Demo - Column Weak Axis  
 


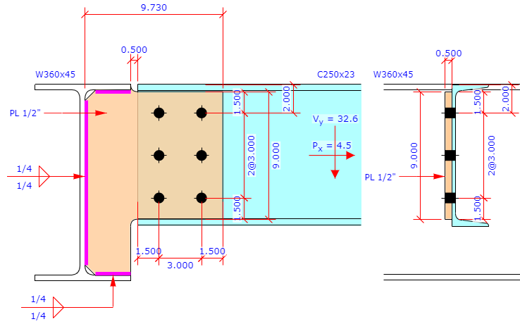
   Shear End Plate Connection - Beam to Girder
 
Shear Connection - Detailing Sketch Shear Connection - CivilBay Sketch 

 
 
   Tutorial on Youtube         Working Sheet           Online Demo            
 

 
Shear Connection - Coped Beam With Reinforcing Stiffener - Detailing Sketch Shear Connection - Coped Beam With Reinforcing Stiffener -  CivilBay Sketch 

 
 
   Tutorial on Youtube         Working Sheet           Online Demo            
 

 
   Shear Tab Connection - Beam to Girder
 
Shear Connection - Detailing Sketch Shear Connection - CivilBay Sketch

 
 
   Tutorial on Youtube            Working Sheet               Online Demo  
 

 
 
Shear Tab Connection - Beam to Girder - Detailing Sketch Shear Tab Connection - Beam to Girder -  CivilBay Sketch 

 
 
   Tutorial on Youtube         Working Sheet           Online Demo - Shear Tab          Online Demo - Direct Weld          Online Demo - End Plate